Little details, big impressions. Shape a new home around you. Learn More

Please complete the form to download a copy of the display home flyer.
DISPLAY HOME: 9 Cartledge Avenue, Miranda NSW
By Appointment Only
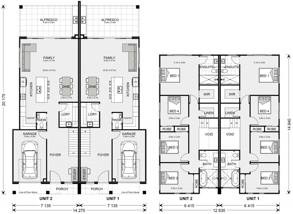
The Morningside is a two-storey duplex design featuring identical layouts separated by a central dividing wall, modern interiors and inclusions, impressive street appeal and stylish entertaining spaces for today’s needs.
Offering a spacious dual living design that is perfect for renting or occupying yourself, each unit offers four bedrooms, an open plan kitchen, family and dining room, and a single garage.
Whether you’re entertaining guests or spending quality time with the family, the Morningside offers plenty of possibilities with flexibility for years to come.
Allow yourself to imagine the lifestyle you’ve always wanted; in the home you deserve!
The Morningside offers individually crafted facades that will inspire you by providing a choice of homes that reflect your personal lifestyle and preferences.
For optimal site use, this design is best positioned on sites with the north aspect towards the rear of the home, providing sustainable and comfortable living conditions throughout the year.
Download the Morningside 449 Display brochure to get all details about the home. Alternatively, contact your local G.J. Gardner consultant to learn more about customisations and pricing on this home.
Trusted by over 36,000 families since 1983

Please complete the form to download a copy of the home design flyer.
(c) Copyright G.J. Gardner Homes 2026
Images and photographs may depict fixtures, finishes and features either not supplied by G.J. Gardner Homes or not included in any price stated. These items include furniture, swimming pools, pool decks, fences, landscaping. Price does not include all facades shown. For detailed home pricing, please talk to a new homes consultant.