Little details, big impressions. Shape a new home around you. Learn More
Please complete the form below and one of our friendly team will be in touch soon.

Please complete the form to download a copy of the house and land package flyer.
Please complete the form below and one of our friendly team will be in touch soon.

Please complete the form to download a copy of the house and land package flyer.
DISPLAY HOME – 22 Claremont Drive, Warragul (Crownlea) VIC
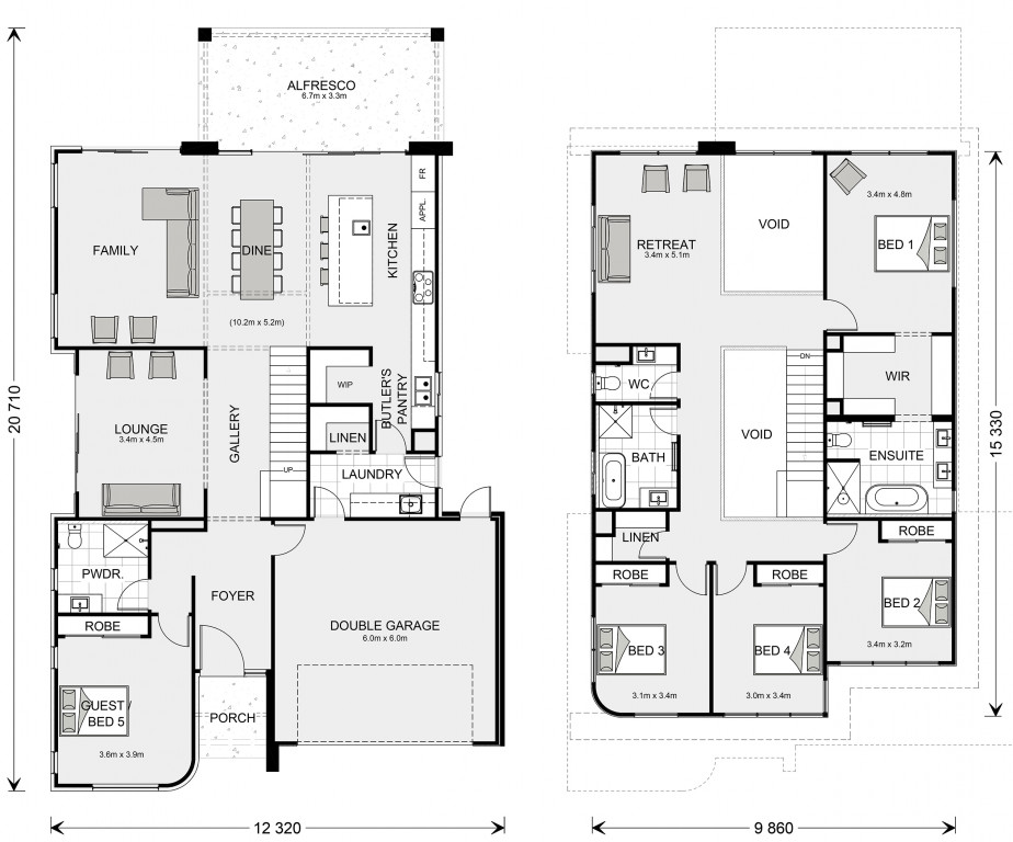
The Castaway is a luxurious double storey family home with generous open plan living and private spaces that delivers a variety of possibilities to entertain and relax.
Luxurious and spacious are 2 words that describe the gourmet kitchen and butler’s pantry, overlooking the family and dining that extend outdoors to a huge alfresco making entertaining a flowing enjoyable experience. The central voids accentuate the sense of space and grandeur that form the main living area of this impressive home. Relax and unwind in the central lounge room with sliding doors that open to a private courtyard to enjoy some quiet reflection, watch a movie or soak up the morning sunlight.
Five bedrooms throughout include a generous guest room and powder room downstairs. An impressive master suite upstairs privately positioned to the rear boasts a huge walk-in robe and ensuite where you can escape and relax in privacy while enjoying amazing scenery at the rear of the site.
A designer staircase with large architectural voids offers plenty of natural light into the home providing spacious, relaxing interiors while maintaining a sense of privacy throughout the home.
Overlooking the floor below, is a separate retreat area and balcony to relax and unwind, taking full advantage of elevated views.
Allow yourself to imagine the lifestyle you’ve always wanted; in the home you deserve!
The Castaway offers individually crafted facades that will inspire you by providing a choice of homes that reflect your personal lifestyle and preferences.
For optimal site use, this design is best positioned on sites with the north aspect towards the rear of the home, providing sustainable and comfortable living conditions throughout the year.
Images and photographs may depict fixtures, finishes and features either not supplied by G.J. Gardner Homes or not included in any price stated. These items include furniture, swimming pools, pool decks, fences, landscaping. Price does not include all facades shown. For detailed home pricing, please talk to a new homes consultant.
Download the Castaway 355 Display flyer to get all details about the home. Alternatively, contact your local G.J. Gardner consultant to learn more about customisations and pricing on this home.

Please complete the form to download a copy of the house and land package flyer.
(c) Copyright G.J. Gardner Homes 2026
Images and photographs may depict fixtures, finishes and features either not supplied by G.J. Gardner Homes or not included in any price stated. These items include furniture, swimming pools, pool decks, fences, landscaping. Price does not include all facades shown. For detailed home pricing, please talk to a new homes consultant.