Little details, big impressions. Shape a new home around you. Learn More
Please complete the form below and one of our friendly team will be in touch soon.
Please complete the form below and one of our friendly team will be in touch soon.
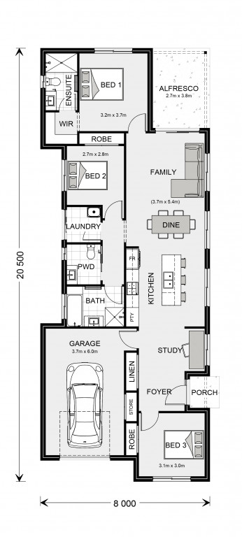
Compact and stylish, the Riverbank is a cleverly designed single level home to suit narrow sites, offering maximum comfort, privacy and good use of space with functional practical living.
Ideal for first home buyers or downsizers, the home provides good separation of bedrooms throughout the home, including a private master suite to the rear with ensuite and walk-in robe.
Light and breezes flow into a spacious open plan living area, comprising a stylish kitchen, island bench, family and dining area, connecting to the outdoors with windows down the side and sliding doors to a covered outdoor living space to the rear.
A modern approach with entry from the side of the home, allows a bedroom to be positioned for privacy at the front. A study, laundry and garage are welcome additions, making the Riverbank a delightful family home.
Allow yourself to imagine the lifestyle you’ve always wanted; in the home you deserve!
The Riverbank offers individually crafted facades that will inspire you by providing a choice of homes that reflect your personal lifestyle and preferences.
For optimal site use, this design is best positioned on sites with the north aspect towards the rear and side of the home, providing sustainable and comfortable living conditions throughout the year.

Download the Riverbank 152 brochure to get all details about the home. Alternatively, contact your local G.J. Gardner consultant to learn more about customisations and pricing on this home.
Trusted by over 36,000 families since 1983

Please complete the form to download a copy of the home design flyer.
(c) Copyright G.J. Gardner Homes 2026
Images and photographs may depict fixtures, finishes and features either not supplied by G.J. Gardner Homes or not included in any price stated. These items include furniture, swimming pools, pool decks, fences, landscaping. Price does not include all facades shown. For detailed home pricing, please talk to a new homes consultant.