Little details, big impressions. Shape a new home around you. Learn More

Please complete the form to download a copy of the display home flyer.
This display home is located at 30 Lorikeet Street, Kialla VIC 3631
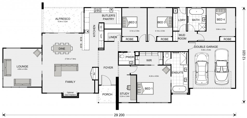
The Cressbrook is a spacious, impressive home featuring a wide frontage and a stunning open plan living space that flows from front to back, taking full advantage of surrounding views.
There is plenty of room for entertaining with generous spaces for family and friends including a large gourmet kitchen positioned to provide easy connections between the living areas and outdoor alfresco.
A large master suite takes in the views at the front of the home, offering escape and privacy with its well-equipped ensuite and large walk in robe. The additional 3 generous bedrooms and family bathroom are located to the rear for that extra slice of privacy.
A separate lounge room and study are the added features that makes the Cressbrook an enjoyable home with everything you need.
Allow yourself to imagine the lifestyle you’ve always wanted; in the home you deserve!
The Cressbrook offers individually crafted facades that will inspire you by providing a choice of homes that reflect your personal lifestyle and preferences.
For optimal site use, this design is best positioned on sites with the north aspect towards the side of the home, providing sustainable and comfortable living conditions throughout the year.
Download the Cressbrook 297 brochure to get all details about the home. Alternatively, contact your local G.J. Gardner consultant to learn more about customisations and pricing on this home.
Trusted by over 36,000 families since 1983

Please complete the form to download a copy of the home design flyer.
(c) Copyright G.J. Gardner Homes 2026
Images and photographs may depict fixtures, finishes and features either not supplied by G.J. Gardner Homes or not included in any price stated. These items include furniture, swimming pools, pool decks, fences, landscaping. Price does not include all facades shown. For detailed home pricing, please talk to a new homes consultant.