Toowong 429 Display

  • 5
  • 3
  • 2
Floor Area: 429 m2
  • Minimum Lot Width: 18m

Come Visit our display home at 3 Saltwood Dr, Rosedale (Saltwood Estate) NSW

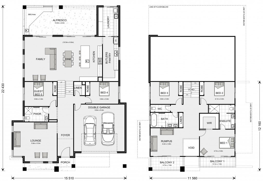
Designed to suit sites that slope toward the front of the home, the Toowong, set over three stylish levels, is well equipped to meet your family’s lifestyle needs.

Entering the home on the lower level, you find a lounge room or office, 2 bedrooms and a bathroom before heading upstairs to the open plan living space where a huge kitchen including island bench and butler’s pantry overlooks the dining and family areas. An undercover alfresco area brings the outdoors in, creating a luxurious, relaxed, flowing space.

Relax and unwind in the rumpus room upstairs and enjoy the benefits of an elevated living space that flows out onto the covered front balcony. Escape to the master bedroom suite with large well-appointed ensuite and walk in robe creating a private haven feel.

With up to five well-separated bedrooms, three distinct zones and three bathrooms across three levels, the Toowong offers privacy and space for a growing family as well as guests.

Allow yourself to imagine the lifestyle you’ve always wanted; in the home you deserve!

The Toowong offers individually crafted facades that will inspire you by providing a choice of homes that reflect your personal lifestyle and preferences.

For optimal site use, this Toowong is best positioned on sites with the north aspect towards the rear and side of the home, providing sustainable and comfortable living conditions throughout the year.

Standard Features
  • Alfresco
  • Bedroom Downstairs
  • Butler’s Pantry
  • Ensuite
  • Guest Bedroom
  • Laundry
  • Lounge / Media
  • Powder Room
  • Walk-in Linen
  • Walk-in Robe
Toowong 429 Display Floorplan
Disclaimer: Floorplans displayed can vary from actual display home build. Please contact display home directly for further information.

Request Brochure

Request the Toowong 429 Display brochure to get all details about the home. Alternatively, contact your local G.J. Gardner consultant to learn more about customisations and pricing on this home.

Get In Touch

  • Display Home Details

  • 3 Saltwood Dr, Rosedale, NSW, 2536
  • Facilitated by G.J. Gardner Homes Batemans Bay
    Builder's License No. 250712C

Open hours

  • Monday: 09:00 - 17:00
  • Tuesday: 09:00 - 17:00
  • Wednesday: 09:00 - 17:00
  • Thursday: 09:00 - 17:00
  • Friday: 09:00 - 15:00
  • Saturday: 09:00 - 14:00
  • Sunday: Closed